Foto: Só há um Porto

Fotogaleria: a nova academia proposta por Villas-Boas

Candidato à presidência do FC Porto apresenta o Centro de Alto Rendimento

André Villas-Boas apresentou, em Lisboa, aquela que será a nova academia do FC Porto, caso seja eleito, e que denomina como Centro de Alto Rendimento, que custará cerca de 35 milhões de euros.

O candidato à presidência dos dragões começou por atacar Pinto da Costa: «Apresento uma peça fundamental nesta candidatura, com muito prazer em fazê-lo em Lisboa, porque é significado do crescimento do FC Porto. A nossa academia já foi prometida, mas a verdade é que continua a não existir.»

O ex-técnico dos portistas ainda fez questão de explicar a localização destas infraestruturas, assim como a proximidade ao Estádio do Dragão: «O sentido de unidade entre o futebol profissional e a formação é fundamental. É necessário que a equipa A, B e formação tenham proximidade para que os jovens saibam que um dia podem representar o FC Porto. Faz sentido colocar toda a formação do clube neste local. Vai gerar resultados e traduzi-los em campo.»

Foto: Só há um Porto

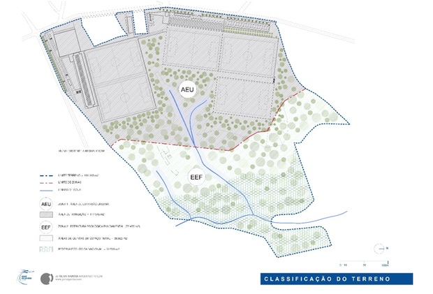
Localização e acesso: Olival, concelho de Vila Nova de Gaia.

Situado próximo ao Estádio do Dragão, com acesso facilitado pela A20, Ponte do Freixo, e saída 3 para a N222, chegando pela Rua Central do Olival em cerca de 15 minutos (14,0km).

 

Classificação do terreno: O terreno de 190.000 m² apresenta uma classificação variada no PDM de Vila Nova de Gaia, incluindo Área de Transição, Estrutura Ecológica Fundamental (com subdivisões em Área de Quintas em Espaço Rural e Reserva Ecológica Nacional), e Áreas Naturais - Áreas Ribeirinhas.

 

Edifícios e instalações:

 

o   Edifício 1: Residência e Apoio Desportivo, com ginásio de alto rendimento, spa, balneários, salas de administração e gestão técnica, entre outros.

- O centro inclui espaços como ginásios de alto rendimento, áreas para hidroterapia, fisioterapia, balneários, salas multifuncionais, e auditório com 56 lugares equipado.

- Hotel/Áreas de alojamento: 46 suites e 2 master suites para direção e treinador.

- Áreas de lazer e serviço: Contempla zonas de lazer, sala de refeições, cozinha, além de áreas para staff e administração.

 

o   Edifício 2: Pavilhão Gimnodesportivo com recinto desportivo polivalente e capacidade para 400 lugares (1.770 m²), com dois balneários.

 

o   Edifício 3: Edifício de Apoio Desportivo, com receção, auditório com capacidade para 48 lugares, ginásio, balneários profissionais, e áreas de apoio médico.

- Dispõe de bancada, tribuna e espaços para a comunicação social, com capacidade para 2.000 lugares distribuídos por 3 Sectores A (680), B (centro 640) e C (680) e espaços para pessoas com mobilidade condicionada.

 

Campos de Futebol: inclui 5 campos de futebol com dimensões regulamentares (68m x 105m)

 

Capacidade de estacionamento: O projeto contempla várias modalidades de estacionamento, incluindo parques privativos de utilização pública e privativo, e totalizando mais de 220 lugares.

Galeria de imagens 8 Fotos